Mas mahusay na malaman sa SF6 ganap na gas na puno ng singsing pangunahing yunit

2025-03-19 - Mag-iwan ako ng mensahe

1. Pangunahing Mga Tampok ng SF6 Gas Insulated Switchgear:


Gas insulated switchgear  Pinagtibay ang SF6 bilang pangunahing daluyan ng pagkakabukod sa 10KV hanggang 35KV singsing na pangunahing yunit. Sa pagtatayo ng urbanisasyon, ang SF6 buong gas na puno ng singsing pangunahing yunit ay may mga benepisyo sa pag -sign sa compact at modular na disenyo. Malawakang pinagtibay ito sa urban power grid, riles ng tren, bagong industriya ng enerhiya, at pang -industriya na negosyo.


Talahanayan ng nilalaman

1. MainFeatures OFSF6 Gas Insulated Switchgear

1.1 Ang modular na disenyo ng SF6 gas insulated switchgear

1.2 Ang compact na disenyo ng SF6 gas insulated switchgear

2. StructUralscheme ng isang SF6 gas insulated switchgear

2.1 SF6 Gas Insulated Switchgear Structure Diagram

2.2 Sa labas ng mga sukat ng isang pangunahing yunit ng singsing ng SF6

2.3 Standard Solutionand Module Modules

3 Parameter ng SF6 gas insulated switchgear

 

1.1 Ang modular na disenyo ng SF6 gas insulated switchgear


AngSF6 Ring pangunahing yunit  Pangunahin ay may C (cable switch panel), V (vacuum circuit breaker panel), D (direktang panel ng koneksyon ng cable), DE (direktang koneksyon ng cable na may panel ng earthing), F (switch-fuse disconnection panel), at M (metering panel).

Sa aktwal na mga kaso, ang yunit ng C at V ay nag -aalok ng kontrol at proteksyon sa pag -input at pag -output ng linya ng kuryente ng cable. Bukod sa pag -andar ng operasyon ng pag -load, ang yunit ng V ay may higit na pag -andar sa pagputol ng maikling circuit kasalukuyang at mag -load ng kasalukuyang. Ang yunit ng M ay nagbibigay ng pagsukat ng CT, at PT, at metro ng enerhiya. Karaniwan, mayroon itong 800mm lapad na kung saan ay pareho sa aKyn28-12. Ang D at DE unit ay ginagamit para sa pagtaas ng taas ng cable mula sa lupa hanggang sa tuktok ng pangunahing yunit ng SF6. Bilang karagdagan, ang yunit ng F na ginamit din sa pag -input at proteksyon ng output, ngunit mas gusto ng mga gumagamit ng terminal na magpatibay ng V unit sa halip na F unit, dahil mas kumplikado ang pagkontrol ng gear.


1.2 Ang compact na disenyo ng SF6 gas insulated switchgear


Karaniwan, ang sukat ng isang c o v unit ay w*h*d = 371*1800*750 (mm), gayunpaman, isang input o output panel ng isang kyn28-12 ay w*h*d = 800*2300*1500 (mm). Walang alinlangan na ang pangunahing yunit ng singsing ng SF6 ay may higit na mapagkumpitensya sa mga gastos sa logistik at lupa. Bukod dito, ang isang SF6 gas insulated switchgear ay may mas mababang mga gastos sa materyal kaysa sa isang Kyn28-12 bilang ang compact na pagdidisenyo.



2. Structural S Cheme ng isang SF6 Gas Insulated Switchgear


   Sa isang gas insulated switchgear, higit sa lahat ay mayroong SF6 gas tank, pangunahing switch at breaker, busbar system, pagkontrol ng gear at pangalawang control at protection system.

   Ang tangke ng gas ng SF6 ay nagpatibay ng 201 o 304 hindi kinakalawang na asero, kung saan ang taunang rate ng pagtagas ay mas mababa kaysa sa 0.1%, na dinisenyo bilang ganap na selyadong at insulated. Tinitiyak nito ang serbisyo na walang pagpapanatili ng higit sa 30 taon.

   Ito ay katulad ng isangair insulated switchgear  Na ang pangunahing switch at breaker sa isang input at output panel ay switch switch, idiskonekta ang switch, load switch breaker at vacuum circuit breaker para sa kontrol at proteksyon ng mga sistema ng kuryente.

   Sa isang karaniwang tangke ng SF6, maaari itong isama ang 7 mga modular na yunit sa karamihan ng isang 10 kV power grid system. Kung hindi man, ang isang koneksyon cable at cable plug ay kinakailangan para sa mga extension. Gayunpaman, sa isang karaniwang tangke, ang mga modular na yunit ay konektado ng tanso na busbar.

   Ang pangalawang sistema ng kontrol at proteksyon ay may pag -andar sa pagsubaybay sa boltahe ng halaga at kasalukuyang upang maprotektahan ang pangunahing yunit ng SF6 mula sa pagkabigo ng system. Samantala, sinusuportahan din nito ang automation, remote control, pagkuha ng data, at pag -access sa sistema ng SCADA. Bilang karagdagan, ang SF6 singsing pangunahing yunit ay nagbibigay din ng pantulong na supply ng kuryente upang matiyak ang normal na operasyon ng control at paghahatid ng signal.


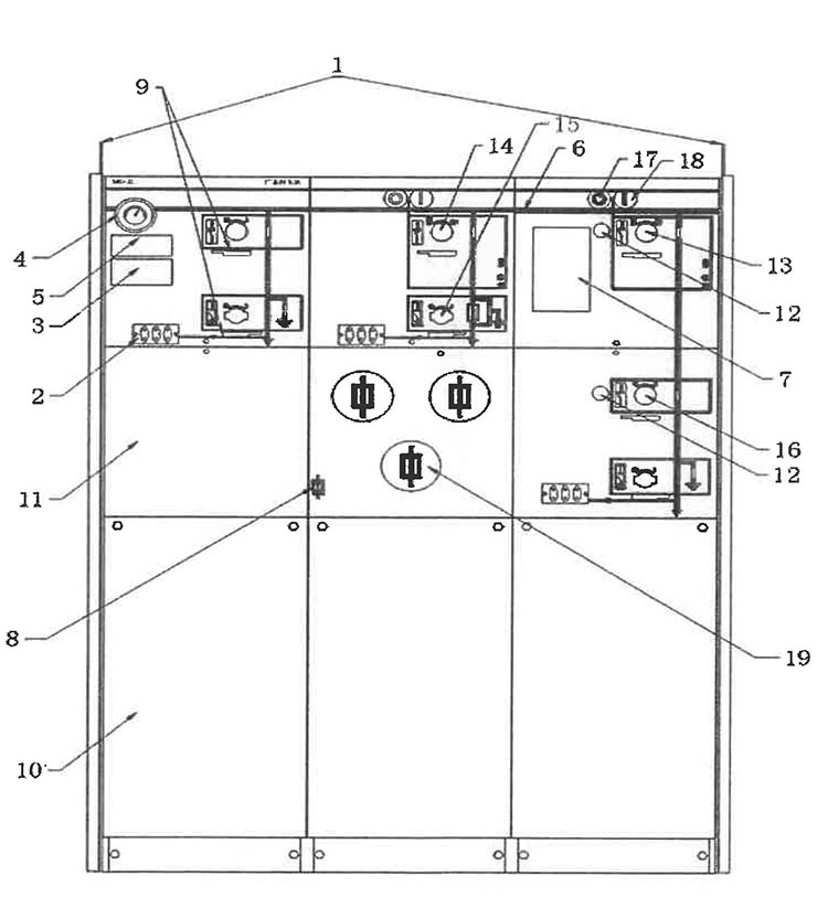
2.1 sf6 gas insulated s witchgear s tructure d iagram:


 

 


1. Pag -aangat ng singsing

2. Live Indicator

3. Mapapahiwatig na Fault Indicator

4. Meter ng Gas-Pressure

5. Plato na may serial number

6. Pagguhit ng solong linya

7. Relay na pinapagana ng sarili

8. Napurol na tagapagpahiwatig ng fuse

9.Padlock

10. Cable Room

11. RTU211 silid ng pag -install

12. locker

13. Hole ng Operasyon ng Circuit Breaker

14. Hole Operation Operation Hole

15. Hole ng Operasyon ng Switch ng Earthing

16. Pagbubukod ng Switch Operation Hole

17. Button ng Paglalakbay

18. Saradong pindutan

19. Fuse kompartimento

 

 


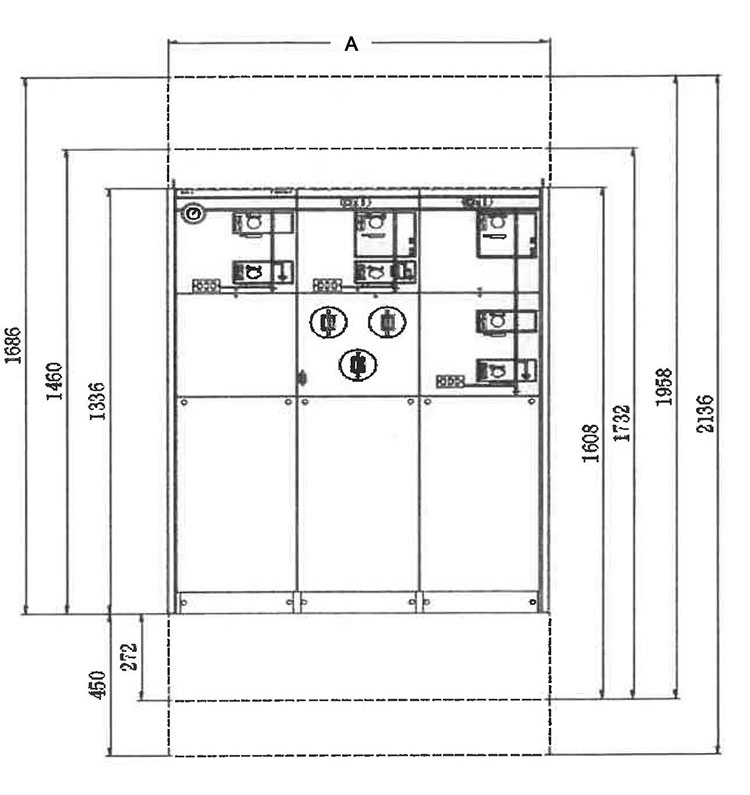
2.2 sa labas ng mga sukat ng isang pangunahing yunit ng singsing ng SF6 :


 

Unit

A

1 cell

371

2 Cell

696

3 Cell

1021

4 cell

1346

5 Cell

1671

6 cell

1996

 

2.3 Standard S olution at E Xtension m Odules :


 


C: switch ng cable  

F: cable switch na may fuse

DE: Direktor ng koneksyon sa cable na may tainga    

V: Vacuum circuit breaker

D: Direktor ng Koneksyon ng Cable  

M: Metering Module (Air Insulation)

 

3.Parameter ng SF6 gas insulated switchgear


1. SF6 Gas Pressure:

Ang kamag -anak na presyon sa 20 ° C ay 0.03MPa

2. Taunang rate ng pagtagas ng gas:

≤0.01%

3. Antas ng Proteksyon:

IP67

4. Mga Kondisyon ng Kapaligiran sa Normal na Kapaligiran:

-35 ℃ hanggang+40 ℃

5. Pinakamataas na average na kamag -anak na kahalumigmigan (sa 25 ° C):

Pang -araw -araw na average na halaga ≤ 95%;

Buwanang average na halaga ≤ 90%

6. Altitude:

≤ 1000m

7. Intensity ng lindol:

Antasⅷ

 

 

Magpadala ng Inquiry

X
Gumagamit kami ng cookies para mag-alok sa iyo ng mas magandang karanasan sa pagba-browse, pag-aralan ang trapiko sa site at i-personalize ang content. Sa paggamit ng site na ito, sumasang-ayon ka sa aming paggamit ng cookies. Patakaran sa Privacy
Tanggihan Tanggapin